首页 > 资讯 >正文

昆山万象汇:探索新商业空间的设计之路

2023-08-11 09:14:54 来源:- 作者:-

随着城市化的不断推进,城市商业中心不仅是经济的枢纽,更是城市文化的缩影。江苏昆山万象汇购物中心便是这样一个富有创意和活力的地标。

昆山万象汇位于昆山主干道前进路和鹿城路交汇处,总占地面积23.5万平米,商业总建筑面积达18.2万平米辐射的3-5公里内,共有128个住宅小区,常驻人口高达44万人,拥有潜力巨大的消费市场作为华润置地在华东区域的商业重点项目,该项目的目标是突破传统购物中心的框架,构建一个涵盖零售、餐饮、娱乐、儿童亲子等业态“可漫步的街区+Mall”展现昆山城市商业创新体验的新视野。为达到此目标,多家知名设计和建筑公司参与其中,如晋思建筑咨询(上海)有限公司负责室内软装设计,北京优高雅装饰工程有限公司负责施工图设计,华润建筑有限公司负责幕墙设计,上海三益建筑设计有限公司负责建筑设计深圳时代装饰股份有限公司承接精装修指定分包工程等。从2012年启动方案设计,到2019年底最终落成昆山万象汇项目一举完成从0到1区域商圈建设,重塑昆山新的商业格局。随着《昆山市城市总体规划(2016-2030)》出台和落实,城市产业扩张吸引更多消费力量昆山万象汇以得天独厚的地理位置和创新的规划理念未来可期

image.png 

(图: 昆山万象汇购物中心外观)

为了符合设计方案中“水之涟漪”般柔和的风格气质,并确保每个店家都能拥有极好的展示效果,昆山万象汇在室内中庭区域精心采用了大跨度的无柱设计。这一设计理念的实现,离不开精装修工程的精湛施工技术和艺术追求。

深圳时代装饰股份有限公司的代表,谭显成,承担了此次精装修工程施工过程的管理和技术应用效果验收等核心任务。他详细介绍了项目的技术挑战和解决方案,特别强调了中庭墙面石材装饰方面的创新技术。通过采用自主研发的“双层弧形石材干挂施工技术”,谭显成的团队成功克服了弧形石材在施工过程中的种种难题,包括施工材料对位不齐、相邻石材连接不吻合、弧形石材打磨不易控制等问题。“无柱设计意味着空间的开放性和流动性得到极大的强化,可以消除视觉上的障碍,增加空间的透明感和自由度。同时,无柱的结构也要求更精湛的技术来保证整体的稳固性和安全性,这对于工程技术人员来说是一项挑战。因此,我们根据昆山万象汇的风格定位和工程需求,利用双层弧形石材干挂施工技术完美呈现出设计师构想中的装饰风格。依托‘一种弧形干挂石材内墙’,这一技术在保证弧形墙面石材安装的安全性与稳定性的同时,还能保证弧形墙面石材的整体柔性效果,为墙面设计增添了更多的创造性和灵动性。”谭显成说。

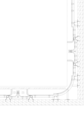
image.png 

(图:双层弧形石材干挂施工技术节点图纸)

对此,华润置地的负责人表示:“这项技术和相关成果的应用大大降低了施工难度,提升了施工效率,实现了工期的节约和装饰效果的提升。这不仅是对传统施工方式的一次重要革新,还展示了现代建筑科技与设计理念的深度融合和前瞻发展。更重要的是,它与昆山万象汇项目在城市中的定位相契合,完美体现了创新、开放、包容的多元化商业体的精神内涵。”据了解,凭借在项目工程中的突出的设计创意和施工工艺,谭显成团队还在2019~2020年度荣获中国建筑装饰行业的最高荣誉奖——中国建筑工程装饰奖。

昆山万象汇项目的成功完成,不仅体现了合理规划与创新施工技术相结合的重要性,更在商业空间的创新创造力方面展示了新的可能性。这一项目突破了传统商业空间的设计框架,融合了现代艺术、先进技术和生活方式,为未来商业中心的设计与建设提供了新的视角和灵感。项目的每一个细节都凝聚了设计者、施工者和管理者的智慧与努力,共同营造了一个既实用又富有审美价值的现代化商业空间。昆山万象汇不仅满足了城市居民的购物需求,更成为了一处充满艺术感的休闲场所,极大地丰富了城市的文化生活。这一项目的成功,无疑标志着昆山商业建筑设计和施工水平的新高度,也为未来的商业空间设计提供了宝贵的借鉴和启示,展现了商业空间在创新与美感方面的无限潜能。(文/常明清)

 


责任编辑:小颖